Vorige | Volgende
Verkocht

Lumeijstraat 17hs Amsterdam

Vraagprijs € 1.150.000 k.k.

Deze woning is verkocht

Neem contact met ons op

020-6222199

info@burgerelkerbout.nl

Omschrijving

** English text below **

Ruimte en rust midden in een levendig stadsdeel, op tien minuten fietsen van hartje Amsterdam en vijf minuten rijden van de snelweg. Moeilijk te geloven dat het bestaat, maar deze ruime dubbele benedenwoning van circa 171 m² met fraaie tuin in de Baarsjes biedt het allemaal. Het betreft een sfeervolle en zeker geen alledaagse woning. Aan de woning is een serre gebouwd waar het daglicht zelfs op donkere dagen weldadig is. Door de plaatsing van de serre komt zonlicht direct in het souterrain. In de slaapkamers is het 's zomers ook tijdens hittegolven aangenaam koel en stil. 's Winters hoeft de vloerverwarming er zelden aan. De tuin heeft twee terrassen, een tuinhuis, een gazon, bloemrijke borders en zelfs een “stadsboomgaard”, waar vijgen, pruimen en appels vers geplukt kunnen worden. Om de hoek zijn supermarkten, vele soorten winkels, scholen, gezellige restaurants en terrassen. De nadelen die er kunnen zijn aan het wonen in een drukke stad bestaan in deze oase niet, en alles wat de stad aantrekkelijk maakt is in de directe omgeving beschikbaar. De woning ligt op eigen grond.

Indeling
Begane grond
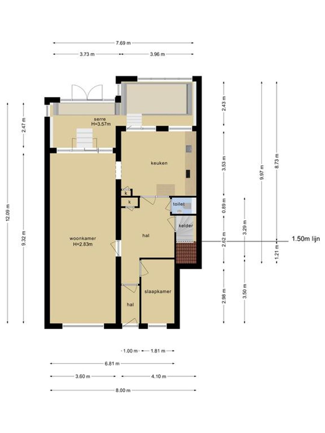
De eigen entree op de begane grond geeft toegang tot een betegeld portaal en een grote hal van waaruit een werkkamer, het toilet, de keuken en de woonkamer bereikbaar zijn. Ook bevindt zich hier de trap naar het souterrain. De serre, die is voorzien van zonwerend dubbel glas en vloerverwarming, is toegankelijk via trapjes vanuit de woonkamer en de keuken. Er is een antiek aanrechtblad met gootsteen. Vanuit de woonkamer is er uitzicht op de straat, en op de tuin. Een dubbel geïsoleerd rookkanaal maakt het mogelijk om in de woonkamer van het vuur en de warmte van een houtkachel te genieten. De gezellige eetkeuken is voorzien van o.a. ingebouwde vaatwasser, vijf-pits gasfornuis en afzuigkap.

Souterrain
In het souterrain bevindt zich opnieuw een ruime hal, die voorheen als kinderspeelkamer gebruikt werd. Vanuit de hal is er toegang tot twee/drie slaapkamers, een badkamer en multifunctionele ruimtes, die nu in gebruik zijn als muziekkamer en berging. De royale badkamer heeft een inloopdouche, ligbad, wastafel en toilet. Het gehele souterrain heeft vloerverwarming en mechanische ventilatie.

Tuin
In de tuin, die meer dan acht meter breed is en dertien meter diep, bevindt zich een charmant tuinhuis, ook als slaap- of werkkamer te gebruiken. Het is geheel geïsoleerd en kan elektrisch verwarmd worden. Het tuinhuis is onderheid.

Bijzonderheden
• Ruime dubbele benedenwoning (171 m²) op begane grond en souterrain;
• Serre die het souterrain op een unieke manier van veel daglicht voorziet en met huis en tuin verbonden is;
• Riante tuin van 108 m2 op het westen, met tuinhuis;
• Gelegen aan een rustige straat in de admiralenbuurt (de Baarsjes);
• Bussen en trams op een paar minuten lopen;
• Winkels, coffeeshops, café's, restaurants, Ten Katemarkt, de Hallen op loopafstand;
• Drie parken (Erasmuspark, Rembrandtpark, Vondelpark) en het centrum van Amsterdam in de nabijheid;
• Actieve vereniging van eigenaren bestaande uit 4 leden; meerjarenonderhoudsplan aanwezig;
• Gelegen op eigen grond.

Verkoper vertelt
Wat maakt dat de huidige bewoners hier met veel plezier wonen en waarom hebben zij besloten de woning te verkopen? De verkoper vertelt.

Wanneer hebben jullie deze woning gekocht en destijds besloten deze woning te kopen?
We woonden in een huurhuis om de hoek en zochten een koophuis in deze gezellige buurt. Toevallig kwam dit huis vrij naast dat van vrienden.

Wat maakt het zo prettig wonen in dit huis en in deze buurt?
Het is een heerlijk “zomerhuis” omdat we in de zomer deels buiten leven. Tevens is het een heel fijn “winterhuis” omdat het licht is en het op zonnige dagen zomers kan aanvoelen in de serre en ’s avonds kun je heerlijk voor de kachel zitten. De straat is rustig en gezellig, het is een buurtje op zich. Onlangs werd er nog een straatfeest georganiseerd door de bewoners. De Lumeijstraat heeft in 2022 een prijs gewonnen voor “de schoonste straat van de Baarsjes”. Een groep bewoners onderhouden gezamenlijk de straat.

Waarom vertrekken jullie/ waarom staat de woning te koop?
Wij gaan een nieuw avontuur tegemoet in Gelderland. We weten nu al dat we dit huis enorm gaan missen. Hopelijk hebben onze opvolgers er evenveel plezier van als wij gedurende bijna 15 jaar hebben gehad.


***

Space and tranquility in the middle of a lively neighbourhood, ten minutes by bike from the heart of Amsterdam and five minutes by car from the highway. Hard to believe it exists, but this spacious double ground floor apartment of 171 m² with beautiful garden in De Baarsjes offers it all. It is an attractive and certainly not an everyday home. A conservatory has been built next to the house, where daylight is beneficial even on dark days. Due to the positioning of the conservatory, sunlight comes directly into the basement. The bedrooms are pleasantly cool and quiet in summer, even during heat waves. In winter, underfloor heating rarely needs to be used. The garden has two terraces, a garden house, a lawn, flowery borders and even an "urban orchard", where figs, plums and apples can be picked fresh. Around the corner are supermarkets, many kinds of shops, schools, cozy restaurants and terraces. The disadvantages of living in a busy city do not exist in this oasis, and everything that makes the city attractive is available in the immediate vicinity. The house is on private land.

Layout
Ground floor
The private entrance on the ground floor gives access to a tiled portal and a large hall from which an office, toilet, kitchen and living room are accessible. The stairs to the basement are also located here. The conservatory, which is equipped with sun-resistant double glazing and underfloor heating, is accessible via steps from the living room and the kitchen. There is an antique counter top with sink. From the living room there is a view of the street and the garden. A double insulated flue makes it possible to enjoy the fire and the warmth of a wood stove in the living room. The cozy kitchen is equipped with a built-in dishwasher, five-burner gas stove and extractor hood.

Basement
In the basement there is again a spacious hall, which was previously used as a children's playroom. From the hall there is access to two/three bedrooms, a bathroom and multifunctional spaces, which are now used as a music room and storage room. The spacious bathroom has a walk-in shower, bath, sink and toilet. The entire basement has underfloor heating and mechanical ventilation.

Garden
In the garden, which is more than eight meters wide and thirteen meters deep, there is a charming garden house, which can also be used as a bedroom or office. It is fully insulated and can be electrically heated. The garden house is shared.

Particularities
• Spacious double ground floor apartment (171 m²) on the ground floor and basement;
• Conservatory that provides the basement with a lot of daylight in a unique way and is connected to the house and garden;
• Spacious garden of 108 m2 on the west, with garden house;
• Located on a quiet street in the admiral neighborhood (de Baarsjes);
• Buses and trams a few minutes' walk away;
• Shops, coffee shops, cafes, restaurants, Ten Katemarkt, De Hallen within walking distance;
• Three parks (Erasmuspark, Rembrandtpark, Vondelpark) and the center of Amsterdam in the vicinity;
• Active owners association;
• Located on private land.

Seller tells
What makes the current residents happy to live here and why have they decided to sell the house? The seller tells.

When did you buy this house and then decided to buy this house?
We lived around the corner and were looking for a house to buy in this cozy and quiet neighborhood.

What makes it so pleasant to live in this house and in this neighborhood?
It is a wonderful "summer house" because we partly live outside in summer. It is also a very nice "winter house" because it is light and on sunny days it can feel summery in the conservatory and you can sit in front of the stove. The street is quiet and cozy, it is a neighborhood in itself. Recently, a street party was organized by the residents. The Lumeijstraat won a prize in 2022 for “the cleanest street in the Baarsjes”. A group of residents jointly maintain the street.

Why are you leaving / why is the house for sale?
We are going on a new adventure in Gelderland. We already know that we are going to miss the house immensely. Hopefully our successors will enjoy it as much as we do.

Kenmerken

Overdracht

Aanvaarding
in overleg

Bouw

Soort woning
dubbel benedenhuis
Type woning
dubbel benedenhuis
Soort bouw
bestaande bouw
Bouwjaar
1922
In aanbouw
nee

Details

Voorzieningen
mechanische ventilatie, natuurlijke ventilatie, tv kabel
Ligging
aan rustige weg, in woonwijk
Open portiek
nee
Permanente bewoning
ja
Daktype
plat dak
Dakmateriaal
bitumineuze dakbedekking

Oppervlakten en inhoud

Woonoppervlakte
171 m²
Inhoud
551 m³

Indeling

Aantal kamers
6
Aantal slaapkamers
4
Aantal woonlagen
2
Aantal etages
2
Aantal badkamers
1
Badkamervoorzieningen
ligbad, toilet, vloerverwarming, wasmachineaansluiting, wastafel
Keuken type
inbouwapparatuur, woonkeuken

Isolatie en verwarming

Soort verwarming
cv ketel, houtkachel, vloerverwarming gedeeltelijk
Warmwater installatie
cv ketel
Ketel bouwjaar
2007
Ketel type
Remeha Avanta
Ketel gas/olie
gas
Ketel eigendom
eigendom

Energielabel

Energielabel
D
Einddatum energielabel
2030-12-26

Kadastrale gegevens

Kadastrale aanduiding
Sloten (N.H.) L 3452
Eigendomssituatie
volle eigendom

Buitenruimte

Tuintype(n)
achtertuin
Hoofdtuin type
achtertuin
Hoofdtuin oppervlakte
108 m²
Hoofdtuin achterom
nee
Ligging hoofdtuin
west
Totale oppervlakte
108 m²

Garage

Garagesoorten
geen garage

Parkeergelegenheid

Faciliteit
betaald parkeren, parkeervergunningen

Schuur/berging

Aantal
1
Soort
vrijstaand hout

VVE informatie

Appartement bijdrage
190
Periodieke bijdrage
ja
Reservefonds
ja
Vergadering
ja
Onderhoudsverwachting
ja
Opstalverzekering
ja
Inschrijving KvK
ja

Omschrijving

** English text below **

Ruimte en rust midden in een levendig stadsdeel, op tien minuten fietsen van hartje Amsterdam en vijf minuten rijden van de snelweg. Moeilijk te geloven dat het bestaat, maar deze ruime dubbele benedenwoning van circa 171 m² met fraaie tuin in de Baarsjes biedt het allemaal. Het betreft een sfeervolle en zeker geen alledaagse woning. Aan de woning is een serre gebouwd waar het daglicht zelfs op donkere dagen weldadig is. Door de plaatsing van de serre komt zonlicht direct in het souterrain. In de slaapkamers is het 's zomers ook tijdens hittegolven aangenaam koel en stil. 's Winters hoeft de vloerverwarming er zelden aan. De tuin heeft twee terrassen, een tuinhuis, een gazon, bloemrijke borders en zelfs een “stadsboomgaard”, waar vijgen, pruimen en appels vers geplukt kunnen worden. Om de hoek zijn supermarkten, vele soorten winkels, scholen, gezellige restaurants en terrassen. De nadelen die er kunnen zijn aan het wonen in een drukke stad bestaan in deze oase niet, en alles wat de stad aantrekkelijk maakt is in de directe omgeving beschikbaar. De woning ligt op eigen grond.

Indeling
Begane grond
De eigen entree op de begane grond geeft toegang tot een betegeld portaal en een grote hal van waaruit een werkkamer, het toilet, de keuken en de woonkamer bereikbaar zijn. Ook bevindt zich hier de trap naar het souterrain. De serre, die is voorzien van zonwerend dubbel glas en vloerverwarming, is toegankelijk via trapjes vanuit de woonkamer en de keuken. Er is een antiek aanrechtblad met gootsteen. Vanuit de woonkamer is er uitzicht op de straat, en op de tuin. Een dubbel geïsoleerd rookkanaal maakt het mogelijk om in de woonkamer van het vuur en de warmte van een houtkachel te genieten. De gezellige eetkeuken is voorzien van o.a. ingebouwde vaatwasser, vijf-pits gasfornuis en afzuigkap.

Souterrain
In het souterrain bevindt zich opnieuw een ruime hal, die voorheen als kinderspeelkamer gebruikt werd. Vanuit de hal is er toegang tot twee/drie slaapkamers, een badkamer en multifunctionele ruimtes, die nu in gebruik zijn als muziekkamer en berging. De royale badkamer heeft een inloopdouche, ligbad, wastafel en toilet. Het gehele souterrain heeft vloerverwarming en mechanische ventilatie.

Tuin
In de tuin, die meer dan acht meter breed is en dertien meter diep, bevindt zich een charmant tuinhuis, ook als slaap- of werkkamer te gebruiken. Het is geheel geïsoleerd en kan elektrisch verwarmd worden. Het tuinhuis is onderheid.

Bijzonderheden
• Ruime dubbele benedenwoning (171 m²) op begane grond en souterrain;
• Serre die het souterrain op een unieke manier van veel daglicht voorziet en met huis en tuin verbonden is;
• Riante tuin van 108 m2 op het westen, met tuinhuis;
• Gelegen aan een rustige straat in de admiralenbuurt (de Baarsjes);
• Bussen en trams op een paar minuten lopen;
• Winkels, coffeeshops, café's, restaurants, Ten Katemarkt, de Hallen op loopafstand;
• Drie parken (Erasmuspark, Rembrandtpark, Vondelpark) en het centrum van Amsterdam in de nabijheid;
• Actieve vereniging van eigenaren bestaande uit 4 leden; meerjarenonderhoudsplan aanwezig;
• Gelegen op eigen grond.

Verkoper vertelt
Wat maakt dat de huidige bewoners hier met veel plezier wonen en waarom hebben zij besloten de woning te verkopen? De verkoper vertelt.

Wanneer hebben jullie deze woning gekocht en destijds besloten deze woning te kopen?
We woonden in een huurhuis om de hoek en zochten een koophuis in deze gezellige buurt. Toevallig kwam dit huis vrij naast dat van vrienden.

Wat maakt het zo prettig wonen in dit huis en in deze buurt?
Het is een heerlijk “zomerhuis” omdat we in de zomer deels buiten leven. Tevens is het een heel fijn “winterhuis” omdat het licht is en het op zonnige dagen zomers kan aanvoelen in de serre en ’s avonds kun je heerlijk voor de kachel zitten. De straat is rustig en gezellig, het is een buurtje op zich. Onlangs werd er nog een straatfeest georganiseerd door de bewoners. De Lumeijstraat heeft in 2022 een prijs gewonnen voor “de schoonste straat van de Baarsjes”. Een groep bewoners onderhouden gezamenlijk de straat.

Waarom vertrekken jullie/ waarom staat de woning te koop?
Wij gaan een nieuw avontuur tegemoet in Gelderland. We weten nu al dat we dit huis enorm gaan missen. Hopelijk hebben onze opvolgers er evenveel plezier van als wij gedurende bijna 15 jaar hebben gehad.


***

Space and tranquility in the middle of a lively neighbourhood, ten minutes by bike from the heart of Amsterdam and five minutes by car from the highway. Hard to believe it exists, but this spacious double ground floor apartment of 171 m² with beautiful garden in De Baarsjes offers it all. It is an attractive and certainly not an everyday home. A conservatory has been built next to the house, where daylight is beneficial even on dark days. Due to the positioning of the conservatory, sunlight comes directly into the basement. The bedrooms are pleasantly cool and quiet in summer, even during heat waves. In winter, underfloor heating rarely needs to be used. The garden has two terraces, a garden house, a lawn, flowery borders and even an "urban orchard", where figs, plums and apples can be picked fresh. Around the corner are supermarkets, many kinds of shops, schools, cozy restaurants and terraces. The disadvantages of living in a busy city do not exist in this oasis, and everything that makes the city attractive is available in the immediate vicinity. The house is on private land.

Layout
Ground floor
The private entrance on the ground floor gives access to a tiled portal and a large hall from which an office, toilet, kitchen and living room are accessible. The stairs to the basement are also located here. The conservatory, which is equipped with sun-resistant double glazing and underfloor heating, is accessible via steps from the living room and the kitchen. There is an antique counter top with sink. From the living room there is a view of the street and the garden. A double insulated flue makes it possible to enjoy the fire and the warmth of a wood stove in the living room. The cozy kitchen is equipped with a built-in dishwasher, five-burner gas stove and extractor hood.

Basement
In the basement there is again a spacious hall, which was previously used as a children's playroom. From the hall there is access to two/three bedrooms, a bathroom and multifunctional spaces, which are now used as a music room and storage room. The spacious bathroom has a walk-in shower, bath, sink and toilet. The entire basement has underfloor heating and mechanical ventilation.

Garden
In the garden, which is more than eight meters wide and thirteen meters deep, there is a charming garden house, which can also be used as a bedroom or office. It is fully insulated and can be electrically heated. The garden house is shared.

Particularities
• Spacious double ground floor apartment (171 m²) on the ground floor and basement;
• Conservatory that provides the basement with a lot of daylight in a unique way and is connected to the house and garden;
• Spacious garden of 108 m2 on the west, with garden house;
• Located on a quiet street in the admiral neighborhood (de Baarsjes);
• Buses and trams a few minutes' walk away;
• Shops, coffee shops, cafes, restaurants, Ten Katemarkt, De Hallen within walking distance;
• Three parks (Erasmuspark, Rembrandtpark, Vondelpark) and the center of Amsterdam in the vicinity;
• Active owners association;
• Located on private land.

Seller tells
What makes the current residents happy to live here and why have they decided to sell the house? The seller tells.

When did you buy this house and then decided to buy this house?
We lived around the corner and were looking for a house to buy in this cozy and quiet neighborhood.

What makes it so pleasant to live in this house and in this neighborhood?
It is a wonderful "summer house" because we partly live outside in summer. It is also a very nice "winter house" because it is light and on sunny days it can feel summery in the conservatory and you can sit in front of the stove. The street is quiet and cozy, it is a neighborhood in itself. Recently, a street party was organized by the residents. The Lumeijstraat won a prize in 2022 for “the cleanest street in the Baarsjes”. A group of residents jointly maintain the street.

Why are you leaving / why is the house for sale?
We are going on a new adventure in Gelderland. We already know that we are going to miss the house immensely. Hopefully our successors will enjoy it as much as we do.

Kenmerken

Overdracht

Aanvaarding
in overleg

Bouw

Soort woning
dubbel benedenhuis
Type woning
dubbel benedenhuis
Soort bouw
bestaande bouw
Bouwjaar
1922
In aanbouw
nee

Details

Voorzieningen
mechanische ventilatie, natuurlijke ventilatie, tv kabel
Ligging
aan rustige weg, in woonwijk
Open portiek
nee
Permanente bewoning
ja
Daktype
plat dak
Dakmateriaal
bitumineuze dakbedekking

Oppervlakten en inhoud

Woonoppervlakte
171 m²
Inhoud
551 m³

Indeling

Aantal kamers
6
Aantal slaapkamers
4
Aantal woonlagen
2
Aantal etages
2
Aantal badkamers
1
Badkamervoorzieningen
ligbad, toilet, vloerverwarming, wasmachineaansluiting, wastafel
Keuken type
inbouwapparatuur, woonkeuken

Isolatie en verwarming

Soort verwarming
cv ketel, houtkachel, vloerverwarming gedeeltelijk
Warmwater installatie
cv ketel
Ketel bouwjaar
2007
Ketel type
Remeha Avanta
Ketel gas/olie
gas
Ketel eigendom
eigendom

Energielabel

Energielabel
D
Einddatum energielabel
2030-12-26

Kadastrale gegevens

Kadastrale aanduiding
Sloten (N.H.) L 3452
Eigendomssituatie
volle eigendom

Buitenruimte

Tuintype(n)
achtertuin
Hoofdtuin type
achtertuin
Hoofdtuin oppervlakte
108 m²
Hoofdtuin achterom
nee
Ligging hoofdtuin
west
Totale oppervlakte
108 m²

Garage

Garagesoorten
geen garage

Parkeergelegenheid

Faciliteit
betaald parkeren, parkeervergunningen

Schuur/berging

Aantal
1
Soort
vrijstaand hout

VVE informatie

Appartement bijdrage
190
Periodieke bijdrage
ja
Reservefonds
ja
Vergadering
ja
Onderhoudsverwachting
ja
Opstalverzekering
ja
Inschrijving KvK
ja

Foto's

Zie ook: Plattegronden

Plattegronden

Kaart Lumeijstraat 17hs Amsterdam

naar Lumeijstraat 17hs Amsterdam
Op 5 minuten loopafstand Op 5 minuten fietsafstand